El Proyecto

Solo 4 pisos y 32 departamentos. Claro Decombe es un edificio boutique que convive de manera armoniosa con el entorno y donde la eficiencia se hace presente en los detalles que permiten que tu vida sea más cómoda, simple e independiente.

Uno y dos dormitorios.

Edificio boutique en sintonia con la vida de barrio.

Edificio inteligente: Cargador de autos eléctricos, riego eficiente y más.

Gastos comunes mas bajos del sector.

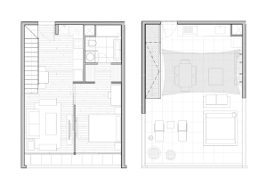
Opción dúplex y azotea privada.

Los Departamentos

Vive en armonía y calidez, en un espacio eficiente y amigable con el medio ambiente donde podrás disfrutar de tu privacidad en la amplitud de tu departamento.

Amplios dormitorios. Principal con walk-in closet.


Ventanas termopanel con marco PVC color grafito.


Cocina full electric equipada con horno, encimera y campana.


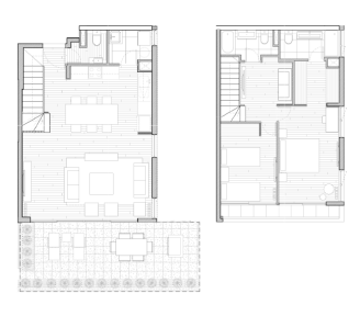
Departamentos con azotea privada.


Departamentos dúplex.


Departamentos de primer piso con jardín de uso y goce exclusivo.

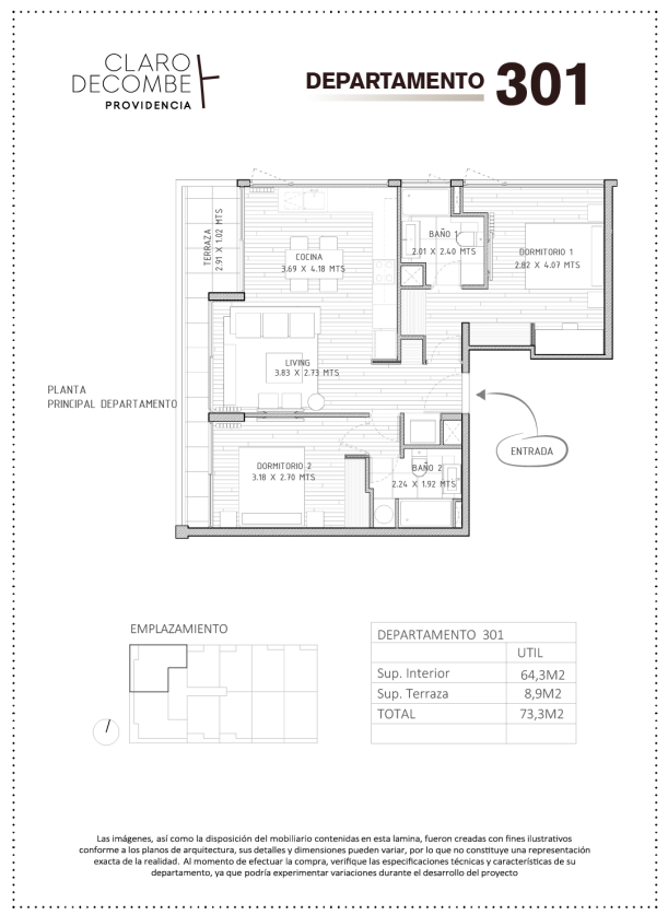
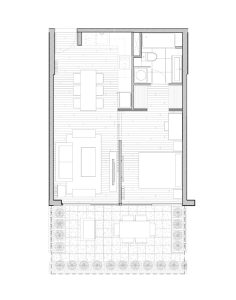
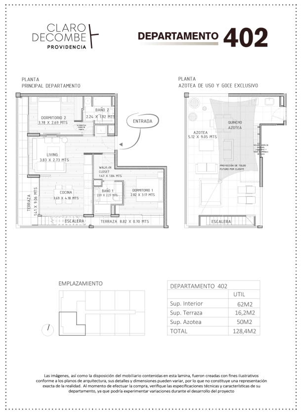
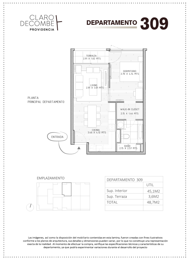
PLANTAS

DEPARTAMENTOS CON JARDÍN 

2 DORMITORIOS+ 2 BAÑOS

2 DORMITORIOS+ 3 BAÑOS (DÚPLEX)

1 DORMITORIO + 1 BAÑO

DEPARTAMENTOS CON AZOTEA PRIVADA

2 DORMITORIOS+ 3 BAÑOS (DÚPLEX)

2 DORMITORIOS+ 3 BAÑOS (DÚPLEX)

2 DORMITORIOS+ 2 BAÑOS (DÚPLEX)

DEPARTAMENTOS CON TERRAZA 

2 DORMITORIOS+ 2 BAÑOS

1 DORMITORIO + 1 BAÑO

1 DORMITORIO + 1 BAÑO

Equipamiento y amenities

Vive en armonía y calidez, en un espacio eficiente y amigable con el medio ambiente donde podrás disfrutar de tu privacidad en la amplitud de tu departamento.

Tecnología

Eficiencia

Confort

  • Cargador eléctrico para autos.
  • Conserjería remota.
  • Cargadores USB en dormitorios. Calefacción +smart.

  • Cocinas full electric.
  • Espacios flexibles.
  • Bajo consumo en iluminación.
  • Riego eficiente en jardines.

  • Quinchos. Jardines.
  • Espacio para compartir.
  • Bicicleteros.
  • Espacio Pet Friendly

Porque la vida de barrio es posible en Santiago

Tranquilidad y verdadera vida de barrio, así podríamos definir al entorno que rodea al proyecto, donde la arquitectura tradicional convive de manera armoniosa con lo que la modernidad propone.

Con un gran abanico de servicios a distancia caminable, así como una interesante oferta gastronómica y recreativa en las calles circundantes como Manuel Montt y Eliodoro Yáñez, hacen que cada día tenga cientos de posibilidades para salir de la rutina.

Ubicación privilegiada

Vive en armonía y calidez, en un espacio eficiente y amigable con el medio ambiente donde podrás disfrutar de tu privacidad en la amplitud de tu departamento.

CONTACTO

HABLEMOS

SALA DE VENTAS

Alberto Decombe 1132, 7500790 Providencia, Región Metropolitana.

Lunes a Domingo de 11:00 a 14:30 hrs y de 15:30 a 19:00hrs.

Las imágenes, textos y planos precedentes fueron elaborados con fines ilustrativos, siendo las dimensiones señaladas aproximadas y las especificaciones exhibidas meramente referenciales, por lo que no constituyen necesariamente una representación exacta de la realidad. Su objetivo es mostrar una caracterización general del proyecto y no cada uno de sus detalles. Lo anterior se informa para los efectos de lo dispuesto en el artículo 18 de la Ley General de Urbanismo y Construcciones y en la Ley N° 19.946 sobre Protección de los Derechos de los Consumidores.